
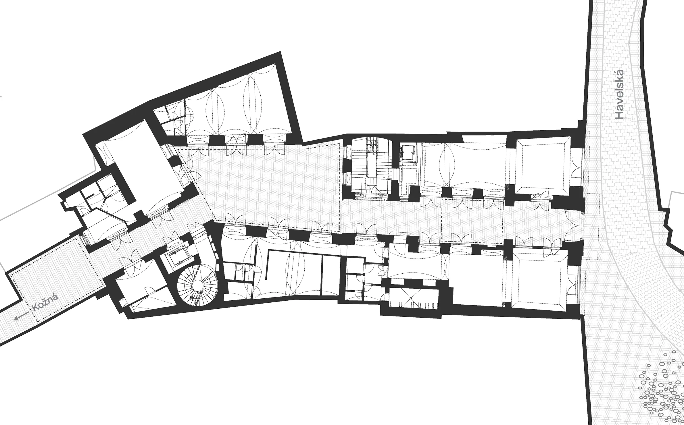
Havelská
Nevšední rekonstrukce klasicistního činžovního domu v historickém centru Prahy trvala devět let. Příběh této pozoruhodné stavby sahá až do 14. století, proto jeho pokračování vyžadovalo maximálně citlivý přístup podložený komplexním studiem souvislostí.
Klient: soukromý investor
Lokalita: Praha
Velikost projektu: HPP 689 m²
Typ projektu: rekonstrukce
Status: dokončeno
Rok: projekt 2016, realizace 2022
Autoři návrhu / realizační tým Qarta: Jiří Řezák, David Wittassek
Další spolupracovníci: Jan Havel, Jan Zmátlík, Roman Klimeš


„Naším úkolem bylo vrátit stavbě původní funkci činžovního domu, což je v dnes převážně turistické čtvrti skutečným unikátem. Atmosféra domu je neopakovatelná, proto jsme přemýšleli, jak sem přinést nové prvky tak, aby ji nenarušily a zároveň odrážely současný přístup. Odkrývání historických vrstev nám pak přineslo mnohá překvapení.“
– Jiří Řezák, zakladatel QARTA


Dlouhá historie stavby je provázána řadou okolností, které se v čase poměrně složitě odvíjely a ovlivňovaly její podobu a funkci. Spojuje tak architektonické styly mnoha epoch a po staletí tu probíhal přirozený proces postupného přestavování.





Odhalení a propojení historických vrstev
Zvolili jsme proto přístup založený na odhalování a estetizování skrytých historických vrstev, které jsme postavili do kontrastu s novými architektonickými prvky, přičemž jednotícím elementem se staly použité materiály – kov, sklo a beton ve své ryzí podobě se domem nenápadně prolínají a zároveň provádí obyvatele jeho historií.
Tento princip byl využit napříč celou rekonstrukcí, od nových podlah v románských sklepích, přes přiznané zbytky gotického lomeného oblouku na fasádě po klasicistní krov. Povrchy v interiérech tvoří škrábané omítky odhalující vrstvy předchozích výmaleb. Historický relikt se tak proměnil v nový estetický element.



Návrat do 40. let
Podařilo se nám také obnovit zastřešení hlavního dvora v jeho původní podobě. Nýtovaná konstrukce s prosklenou střechou byla z bezpečnostních důvodů sejmuta při bombardování Prahy v roce 1945. Dohledali jsme historickou dokumentaci a díky tomu jsme mohli zastřešení restaurovat a znovu použít.
Respektovali jsme, že i některé další prvky jako fasády, výplně otvorů nebo truhlářské a zámečnické výrobky, je nutné zachovat v jejich někdejší podobě. Původní jsou také omítky, keramické a dřevěné masivní podlahy, stropní trámy, konstrukce stropů a krovu a také kamenické části jako schodiště, ostění nebo dlažby.




Důležitost bydlení v centru Prahy
Obytná funkce je pro staré centrum Prahy velmi důležitá, protože jen díky ní tu mohou vznikat přirozené sociální vztahy. Jednotlivá podlaží budou tedy i po drobných úpravách znovu sloužit pro bydlení. Vzhledem ke standardům 21. století bylo třeba provést změny například v umístění toalet a koupelen. Podkrovní prostory byly navrženy jako obytné včetně nového přístupu. Další významnou, ne však agresivní stopou, jsou vestavěné výtahy. Technologie jsme však do stavby integrovali tak, aby nebyly příliš zřetelné. V přízemí domu se pak nachází prostory pro restauraci či hostinec. Zachovali jsme také původní průchozí funkci domu.



